NAVE INDUSTRIAL 729 M2 EN CASTELLI PARK MÉRIDA
Complejo Industrial, Tétiz km 4, Yucatán
Complejo Industrial, Tétiz km 4, Yucatán
NAVE INDUSTRIAL 729 M2 EN CASTELLI PARK MÉRIDA
Impulsa tu operación de manera eficiente en la nave 53. Ideal para almacenamiento y/o producción, ubicada en el corredor Mérida–Tetiz, una de las zonas con mayor crecimiento del sureste, perfecta para empresas que buscan eficiencia, conectividad estratégica e inicio inmediato de operaciones.
UBICACIÓN ESTRATÉGICA:
De acuerdo con el Gobierno de México. (2025, agosto 19). “El estado de Yucatán se caracteriza por su excelente conectividad terrestre, ferroviaria, aérea y marítima, lo que favorece el desarrollo logístico y comercial.”
Castelli Park se posiciona como una ubicación privilegiada al encontrarse cerca de los principales nodos logisticos:
INFRAESTRUCTURA MODERNA CON CERTEZA JURÍDICA:
Uso de suelo: Industrial, comercial y mixto.
Manifestación del impacto ambiental.
Autorización de la secretaria del medio ambiente.
CONAGUA, SCT, CFE, SEMARNAT
Conexión de gas natural a pie de carretera
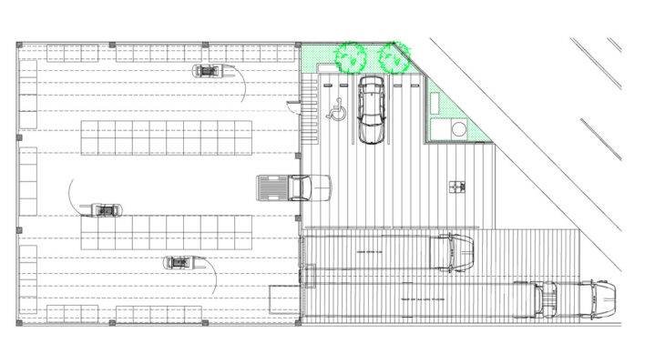
CARACTERÍSTICAS PROPIAS DE LA NAVE:
Nave y andenes totalmente independientes
-729.11 m2 de terreno en propiedad
-400.52.00 m2 techados con estructura tipo marcos rígidos y hasta 10 mts de altura
-328.59 m2 distribuidos en andenes
-50.00 m2 oficina sobre mezzanine
-Transformador eléctrico
-Pisos de alta resistencia para operación industrial
-Cortinas metálicas enrollables con preparación para automatización
-Preparación para la integración de rampas mecánicas, así como mini dock en andenes de carga y descarga.
-Infraestructura a pie de lote con instalaciones listas: red eléctrica subterránea trifásica en media tensión (CFE)
-Nave industrial equipada con cisterna y planta de tratamiento
-Sistema pluvial con pozos de infiltración
-Preparaciones hidrosanitarias disponibles para la adecuación de comedor y núcleos sanitarios dentro de la nave, facilitando la adaptación a las necesidades operativas del usuario.
-Áreas verdes
AMENIDADES, CASTELLI PARK:
-Urbanización de primer nivel, incorporando tecnologías sustentables en armonía con el medio ambiente
-Área de comedor para personal operativo (en construcción)
-Trailer park
-Áreas para estacionamientos
-Hotel para personal operativo
-Centro de negocios (en construcción)
-Control de acceso 24/7, los 365 días del año
-CCTV
-Iluminación con lamparas LEED
De forma independiente, desarrollamos la planeación, gestión y construcción de las adecuaciones necesarias para el funcionamiento de tu empresa.
Contáctanos y descubre las ventajas de operar en un parque industrial de primer nivel, diseñado para impulsar tu crecimiento y rodeado de empresas líderes.
ID de la propiedad – Nave 53
Terreno privado – 729.11 m²
Nave – 400.52 m²
Patio de maniobras y servicios – 328.59 m²
Tipo de propiedad – Nave Industrial
Estado de propiedad – En renta
Dirección – Complejo Industrial, Tétiz km 4, Yucatán
Ciudad – Mérida
Estado – Yucatán
C.P – 97357